Stanz - Schablonen

Das wirklich einmalige Labor-Mechanik System von P&T ist vor allem für die Herstellung von Labormustern und kleineren Serien für die Produktion geeignet.
Basierend auf den leicht herzustellenden Schablonen des Systems wird mit diesen eine relativ hohe Stanz-Genauigkeit erreicht.
Wichtig ist allerdings, dass alle Zuschnitte exakt die gleichen Abmessungen haben und passgenau in die Schablone zu legen sind. In vielen Fällen können mit den schablonengestanzten Teilen noch im Bau befindliche Komplettwerkzeuge vorrübergehend ersetzt werden. Eine wesentliche Vorraussetzung ist, dass die Zuschnitte für die zu stanzenden Teile exakt gleiche Abmessungen haben.
Für das HP2000-System stehen 2 Handstanzen mit den Ausladungen 120mm und 260mm zur Verfügung.
Beide besitzen eine hochpräzise Stempelführung. Das Ein- u. Ausbauen der Stempel u. Matritzen erfolgt mit Hilfe eines Inbus-Schlüssels. Ein besonderer Vorteil ist auch, dass die Schablone um 360 Grad drehbar ist. Um auch ohne Schablone positionsgenaue Stanzungen auszuführen, hat jeder Stempel ein optional zentrierte Spitze, die sich problemlos in jedes Ankörnloch einführen lässt.
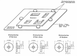
Für die Herstellung einer Stanz-Schablone sind 2 Methoden gebräuchlich. Für beide Arten ist aber vor allem ein exaktes Muster des zu fertigenden Teiles erforderlich. Die Schablone selbst besteht aus einer 2mm dicken Stahlplatte und den normalerweise 6 Begrenzungs-Scheiben für die äußerliche Umrandung des Teiles.
Letztere können einfach aufgeschweißt werden
Dabei ist unbedingt darauf zu achten, dass zwischen dem Werk-stück und den Begrenzungsscheiben extrem geringes Spiel besteht. Nachteilig ist die Methode jedoch, wenn wegen nicht exakter Zuschnitte die Positionen der Begrenzungs-Scheiben wenn auch nur geringfügig verändert werden müssen. Dann sollte man besser die auch verfügbaren Scheiben zum Anschrauben verwenden, deren Position um max. ca. 0,5mm veränderbar ist.
Es existiert noch eine weitere Begrenzer-Scheibe die über einen Flansch verfügt und nur an einer Längsseite der Schablone montiert wird.
Damit wird das Einlegen und Festhalten des Werkstückes in die Schablone wesentlich erleichtert.
So kann die zu stanzende Platte, Folie etc. passgenau unter die Lochplatte geführt werden.
Nun können Sie schnell und genau das Lochbild der Vorlage reproduzieren.
Die Schablonen können wir nach Ihren Angaben lasern und fertigen.
Fertigung nur auf Anfrage !
Fragen Sie unseren Vertrieb.
Bei diesem Beispiel sieht man die 6 Pilzförmigen Halter, die das verrutschen des zu stanzenden Bleches verhindert.


